
Apartamento en Nueva Andalucia, Marbella
Estupendo apartamento de nueva construcción a la venta y alquiler en Nueva Andalucía, Costa del Sol. Orientado al sur con espléndidas...
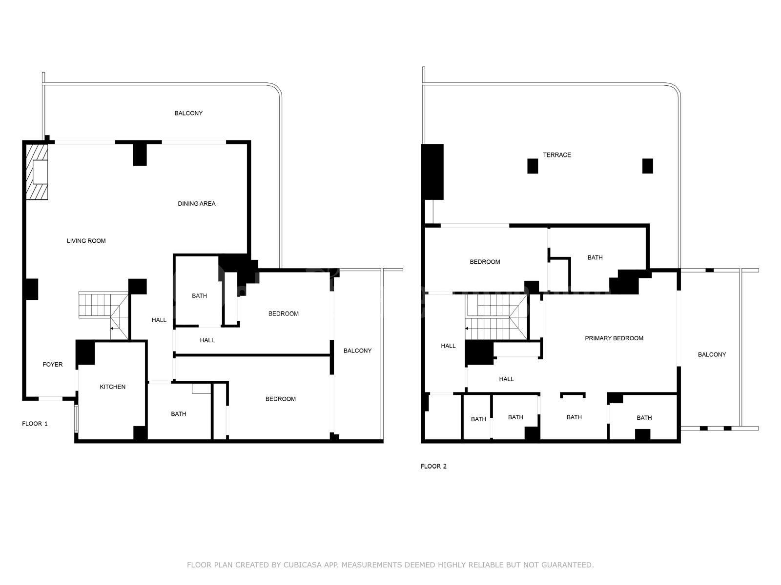
Este excepcional ático dúplex ofrece una combinación poco común de tamaño, ubicación y potencial de reforma. Con una impresionante superficie construida de 220 m² y 120 m² de terrazas, esta propiedad en primera línea de golf es una oportunidad destacada en la codiciada zona de Guadalmina Alta. Tanto si buscas una espaciosa vivienda permanente, una casa de vacaciones o una oportunidad de inversión, esta propiedad lo tiene todo.
En la planta principal, encontrarás un salón luminoso y amplio que se abre a una gran terraza con impresionantes vistas al campo de golf de Guadalmina y a las montañas circundantes. En este nivel también hay dos dormitorios para invitados, uno de ellos con baño en suite y ambos con acceso a una terraza privada, además de un baño independiente para invitados. La cocina en esta planta podría convertirse en un quinto dormitorio o en un amplio baño adicional, lo que ofrece una mayor flexibilidad.
En la planta superior, se encuentra una lujosa suite principal con un amplio baño en suite y su propia terraza privada, ofreciendo un refugio tranquilo con preciosas vistas. También hay un dormitorio adicional para invitados, con baño en suite y terraza privada, completando así un alojamiento generoso en toda la vivienda.
La propiedad incluye una plaza de garaje subterránea y se encuentra a poca distancia a pie de la Casa Club de Golf Guadalmina, lo que la convierte en un sueño para los amantes del golf. Además, estás a solo unos pasos del centro comercial de Guadalmina, donde te espera una amplia oferta de restaurantes, supermercados y otros servicios.
A tan solo 5 minutos de San Pedro y 10 minutos de Puerto Banús, este ático goza de una ubicación ideal para disfrutar de lo mejor de la Costa del Sol.
Estupendo apartamento de nueva construcción a la venta y alquiler en Nueva Andalucía, Costa del Sol. Orientado al sur con espléndidas...
Nuevo en el mercado luminoso apartamento en la cotizada urbanización Alhambra del Mar con perfecta orientación y una bonita terraza....
Descubre tu hogar soñado en este exquisito dúplex ubicado en la prestigiosa urbanización Los Pinos de Aloha, Nueva Andalucía. Con una...